Skip to main content
Home
About
Projects
Work With Me
Testimonials
Drawings
Home
About
Projects
Work With Me
Testimonials
Drawings
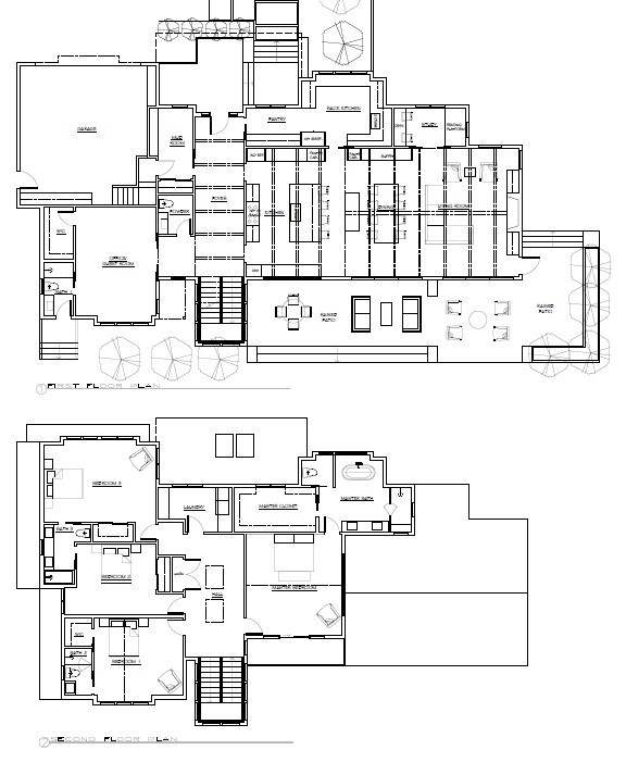
San Carlos Drawings